Skip to content

Red Square | 337 - 1,813 sq ft | from €11.50

OfficeRent Property number: 101888@22

Property details

Address 63263 Neu-Isenburg, Deutschland
Office area 1.713 m²
Total area 22.733 m²
Plot area 24.900 m²
Divisible from 337 m²
Rental price 11,50 EUR/m²
Brokerage / Commission Commission subject
As discussed, the tenant pays our commission of 3.0 monthly net rents for a lease term of up to 5 years and 3.5 monthly net rents for a lease term of 5 years or more, plus ancillary/operating costs and statutory VAT. If the rental or lease agreements contain options for the extension of the rental or lease term and/or pre-letting rights, the commission shall be increased by 0.5 monthly net rents plus ancillary/operating costs and statutory VAT. By net monthly rent we mean the rent for all rooms and space rented, i.e. also taking into account rented ancillary space, in particular storage/archive space, car parking spaces, etc. The commission is due upon conclusion of the contract.

Features

  • Alarmanlage
  • Balkon
  • Card code system
  • Energieausweis vorhanden
  • Terrasse

Energy certificate

Type of energy certificate Demand certificate
Final energy demand 127 kWh/(m²·a)
Primary energy source Erdgas schwer
Year of construction (energy certificate) 2008
Building type Non-residential building
Issue date 30.04.2014

Property description

Der Neubau in unmittelbarer Nähe zum Flughafen verfügt über effiziente und hochwertige Büro- und Serviceflächen.

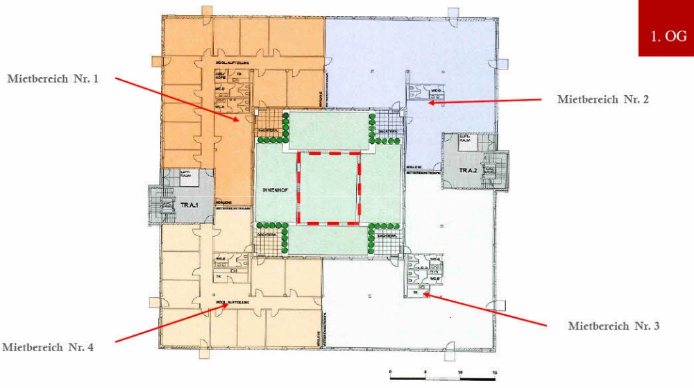
Jedes Geschoss ist in bis zu 4 Mietbereiche teilbar und jedes Gebäude hat 2 Eingänge. Es sind unterschiedliche Raumtiefen mit oder ohne Atrium möglich.

Nutzerorientierte Raumkonzepte sind auch nach dem Einzug leicht adaptierbar. Die Belichtung und die Raumausstattung sind arbeitsplatzgerecht. Das Design, die Ausstattung und die Materialien sind von hoher Wertigkeit. Des Weiteren verfügt jede Mieteinheit über eine Terrasse und Balkone.

Location

Der Stadtteil Zeppelinheim liegt in direkter Nachbarschaft des Frankfurter Flughafens zwischen der A 5 und der B 44. Die Fahrzeiten zu den Autobahnauffahrten betragen zur A5 2 Minuten, zur A3 5 Minuten und zur A661 7 Minuten. Die B 44 ist die Verbindung in die Frankfurter Innenstadt/Bankenviertel, je nach Verkehrslage beträgt die Fahrzeit zwischen 15 Minuten und 25 Minuten während der Rushhour.

Zeppelinheim verfügt weiterhin über eine eigene S-Bahn-Station.