Skip to content

F-Ost Riederwald/Fechenheim | 3,848 m² | from EUR 5.50

IndustrialRent Property number: 102113@26

Property details

Address 60314 Frankfurt am Main, Deutschland
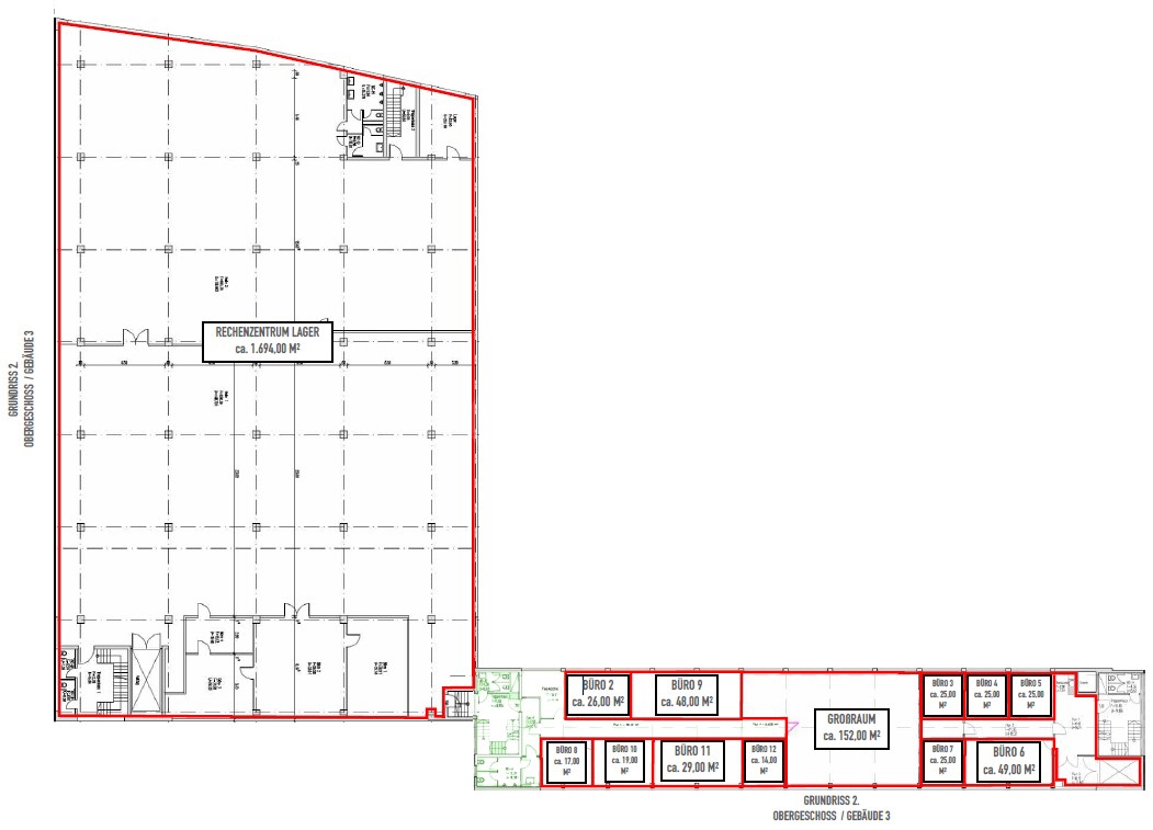
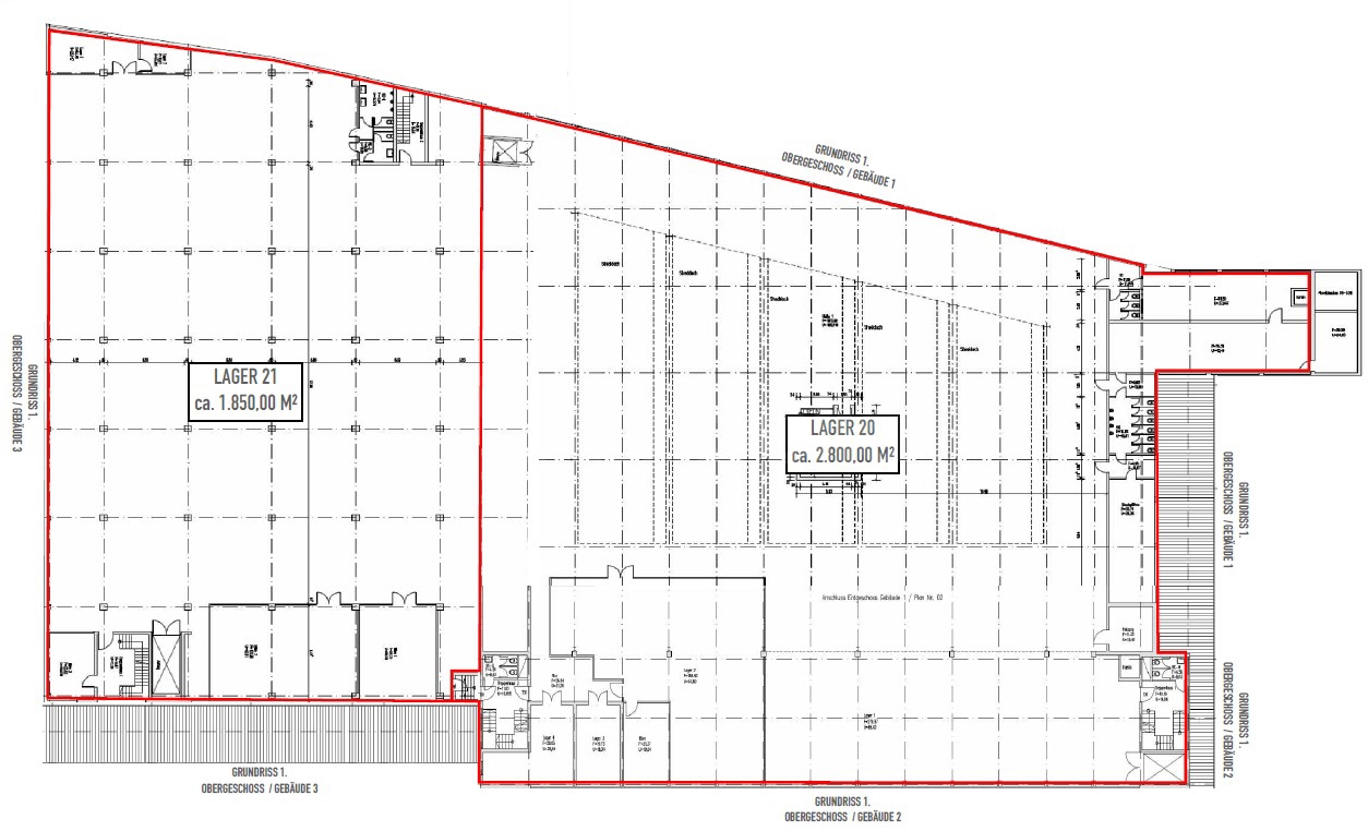
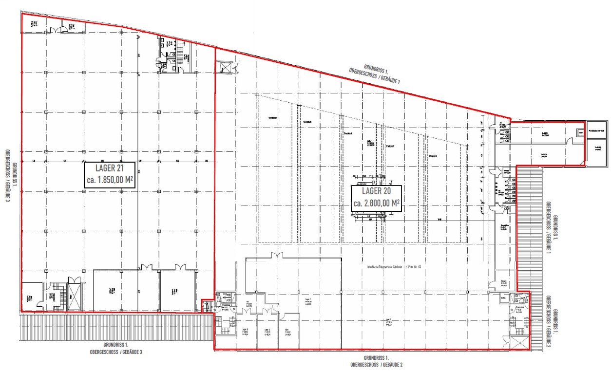
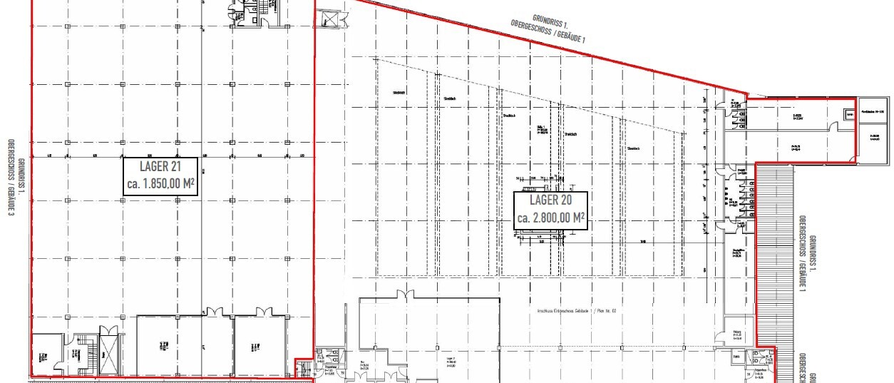
Hall area 3.848 m²
Total area 11.816 m²
Plot area 7.100 m²
Rental price 5,50 EUR/m²
Brokerage / Commission Commission subject
As discussed, the tenant pays our commission of 3.0 monthly net rents for a lease term of up to 5 years and 3.5 monthly net rents for a lease term of 5 years or more, plus ancillary/operating costs and statutory VAT. If the rental or lease agreements contain options for the extension of the rental or lease term and/or pre-letting rights, the commission shall be increased by 0.5 monthly net rents plus ancillary/operating costs and statutory VAT. The commission is due upon conclusion of the contract.

Features

  • Child elevator
  • Rolltor(e)
  • Sprinkleranlage
  • Trafostation
  • Freight elevator
  • Hall height: 3,8 m

Energy certificate

Building type Non-residential building