Skip to content

F-City Train Station Quarter | 364 - 3,145 sq m

OfficeRent Property number: 506627@22

Property details

Address 60329 Frankfurt am Main, Deutschland
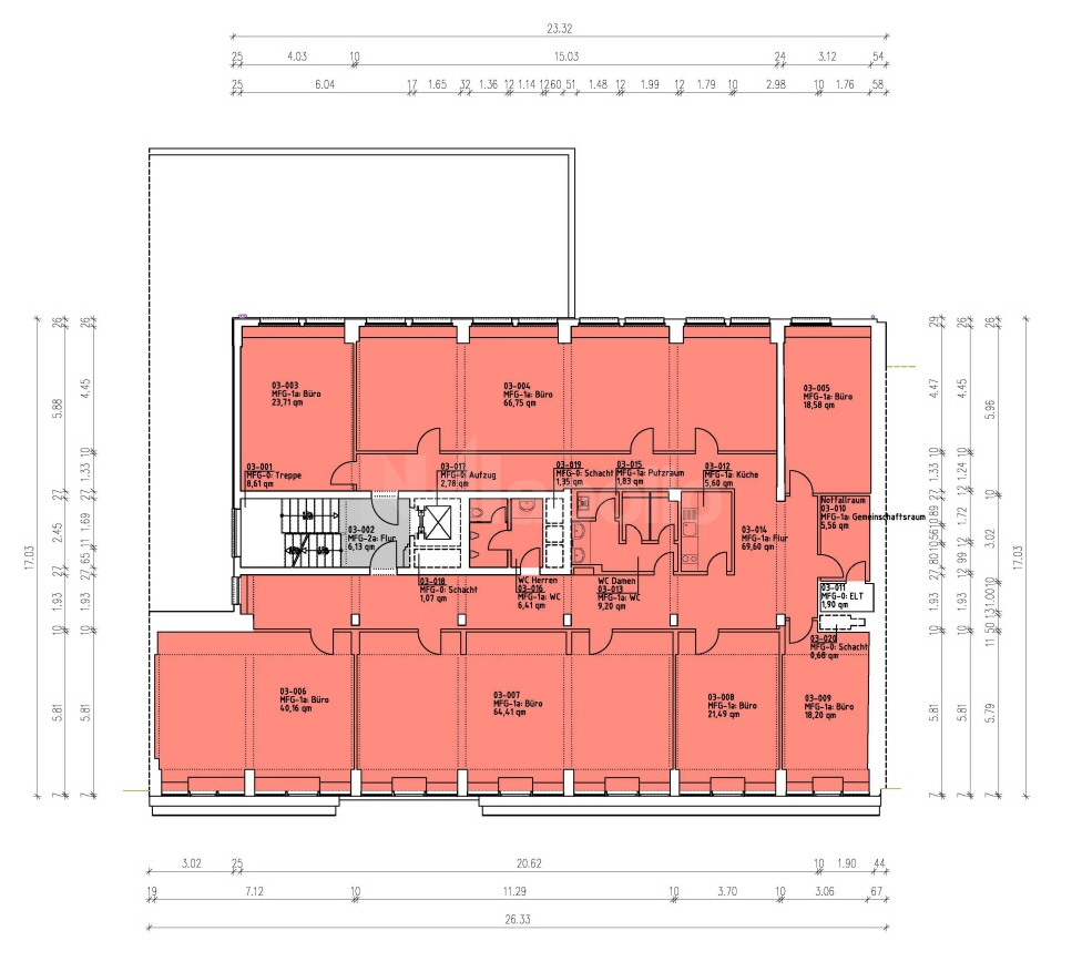
Office area 3.272 m²
Total area 3.376 m²
Plot area 600 m²
Divisible from 364 m²
Price On request
Brokerage / Commission Commission subject
As discussed, the tenant pays our commission of 3.0 monthly net rents for a lease term of up to 5 years and 3.5 monthly net rents for a lease term of 5 years or more, plus ancillary/operating costs and statutory VAT. If the rental or lease agreements contain options for the extension of the rental or lease term and/or pre-letting rights, the commission shall be increased by 0.5 monthly net rents plus ancillary/operating costs and statutory VAT. By net monthly rent we mean the rent for all rooms and space rented, i.e. also taking into account rented ancillary space, in particular storage/archive space, car parking spaces, etc. The commission is due upon conclusion of the contract.

Features

  • Personenaufzug
  • Representative entrance area
  • Schließanlage
  • Sprechanlage

Energy certificate

Year of construction (energy certificate) 1962
Building type Non-residential building

Property description

Das 1962 errichtete Gebäude wurde 1992 umfangreich saniert und fällt durch die gespiegelten Fensterscheiben besonders auf.

Die Liegenschaft ist in der Nähe der Messe und des Hauptbahnhofs gelegen. Zu Fuß ist man in 3 Minuten bei der S-Bahn-Station "Hauptbahnhof".

Location

Das Bahnhofsviertel ist mit knapp 0,5 km² nach der Altstadt der zweitkleinste Stadtteil von Frankfurt am Main. Die längste Grenzlinie ist gerade einmal knapp 1 km lang. Fast trapezförmig liegt das Viertel zwischen dem Frankfurter Alleenring im Westen, der Mainzer Landstraße im Norden und dem Anlagenring im Osten. Im Süden bildet der Main die natürliche Grenze. Benachbarte Stadtteile sind im Westen das Gutleutviertel und das Gallus mit dem Hauptbahnhof, im Norden das Westend-Süd, im Osten die Frankfurter Innenstadt und im Süden auf der gegenüberliegenden Mainseite Sachsenhausen-Nord. Der Stadtteil liegt zentral im Frankfurter Innenstadtbezirk.