Skip to content

LeByro | 1,050 sqm | from €14.00

OfficeRent Property number: 508011@22

Property details

Address 63263 Neu-Isenburg, Deutschland
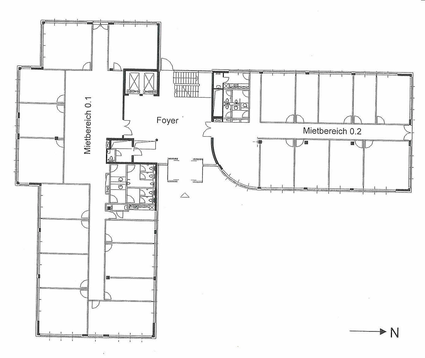
Office area 1.050 m²
Total area 25.713 m²
Plot area 17.067 m²
Divisible from 1.050 m²
Rental price 14,00 EUR/m²
Brokerage / Commission Commission subject
As discussed, the tenant pays our commission of 3.0 monthly net rents for a lease term of up to 5 years and 3.5 monthly net rents for a lease term of 5 years or more, plus ancillary/operating costs and statutory VAT. If the rental or lease agreements contain options for the extension of the rental or lease term and/or pre-letting rights, the commission shall be increased by 0.5 monthly net rents plus ancillary/operating costs and statutory VAT. By net monthly rent we mean the rent for all rooms and space rented, i.e. also taking into account rented ancillary space, in particular storage/archive space, car parking spaces, etc. The commission is due upon conclusion of the contract.

Features

  • Card code system
  • Energieausweis vorhanden
  • Großraumnutzung möglich
  • Passenger elevators
  • Server room
  • Kitchenette(s)

Energy certificate

Type of energy certificate Demand certificate
Electricity value 142.80000
Primary energy source Erdgas leicht
Year of construction (energy certificate) 2003
Building type Non-residential building
Issue date 28.10.2008

Property description

Die Gebäude sind mit ihrem sehr hohen Ausbaustandard und nicht zuletzt durch die Lage am Waldrand eine attraktive Adresse.

Die anspruchsvolle Fassadengestaltung in Aluminium und Naturstein bietet ein optisches Highlight im Gewerbegebiet Süd.

Die EG Flächen im Bauteil B können nur zusammen vermietet werden.