Skip to content

Hillsite | 435 - 9,144 m² | from 14.50 EUR

OfficeRent Property number: 508629@22

Property details

Address 65824 Schwalbach am Taunus, Deutschland
Office area 9.144 m²
Total area 28.228 m²
Plot area 14.814 m²
Divisible from 435 m²
Rental price 14,50 EUR/m²
Brokerage / Commission Commission subject
As discussed, the tenant pays our commission of 3.0 monthly net rents for a lease term of up to 5 years and 3.5 monthly net rents for a lease term of 5 years or more, plus ancillary/operating costs and statutory VAT. If the rental or lease agreements contain options for the extension of the rental or lease term and/or pre-letting rights, the commission shall be increased by 0.5 monthly net rents plus ancillary/operating costs and statutory VAT. By net monthly rent we mean the rent for all rooms and space rented, i.e. also taking into account rented ancillary space, in particular storage/archive space, car parking spaces, etc. The commission is due upon conclusion of the contract.

Features

  • Fire alarm system
  • Card code system
  • Einbruchmeldeanlage
  • Ganzglasfassade
  • Backup generator
  • Representative entrance area
  • Sprinkleranlage
  • Kitchenette(s)

Energy certificate

Type of energy certificate Demand certificate
Electricity value 251.00000
Year of construction (energy certificate) 1980
Building type Non-residential building
Issue date 07.09.2015

Property description

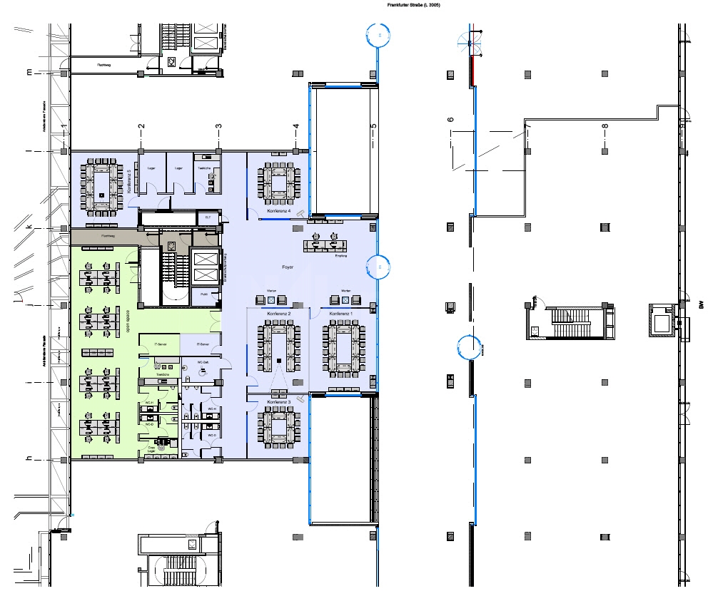
Nördliches Ende des Gewerbegebietes Schwalbach. Zur einen Seite blicken Sie über die beeindruckende Silhouette der Metropole Frankfurt und einen der dynamischsten und wirtschaftsstärksten Regionen Deutschlands - zur anderen Seite über die malerische Landschaft des Taunus mit seinen grünen Hügeln und Wäldern und der Burg Kronberg. Das hillsite gliedert sich in zwei Parkebenen, eine Erdgeschossebene sowie vier Büroebenen.

Die auf das Minimum reduzierte Tragestruktur des Gebäudes lässt ein großzügiges und variables Raumkonzept zu.

Es kann Keller-/Lagerfläche (9,00 €/m²) sowie Parkplätze (70,00 - 80,00 €/Stk.) angemietet werden.

  • Bei den hier angebotenen Flächen vom EG - 2. OG m² handelt es sich um eine Untermietflächen. Ein Direktmietvertrag mit dem Eigentümer ist möglich. Mietpreis dann ist VHS. ca. 128 Stellplätze zur Verfügung.

Location

Nördliches Ende des Gewerbegebietes Schwalbach. Zur einen Seite blicken Sie über die beeindruckende Silhouette der Metropole Frankfurt und eien der dynamischsten und wirtschaftsstärksten Regionen Deutschlands - zur anderen Seite über die malerische Landschaft des Taunus mit seinen grünen Hügeln und Wäldern und der Burg Kronberg.