Skip to content

Twenty One Central

OfficeRent Property number: 508936@22

Property details

Address 80335 München, Deutschland
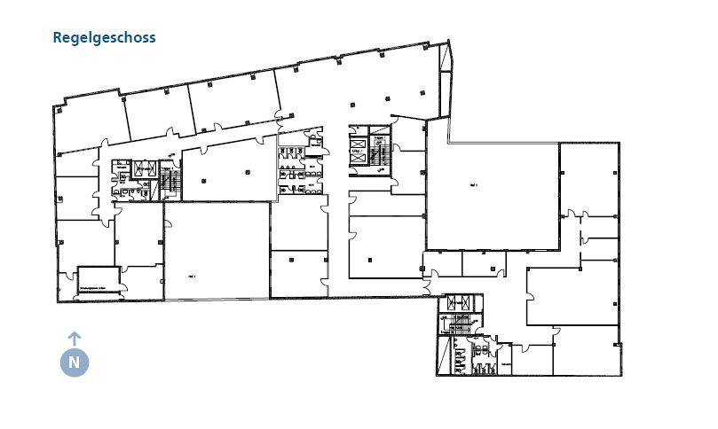
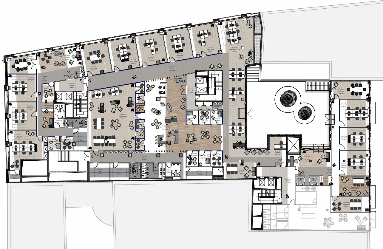
Office area 2.200 m²
Total area 15.062 m²
Plot area 2.612 m²
Divisible from 357 m²
Rental price 42,00 EUR/m²
Brokerage / Commission Commission free
Deviating from our enclosed General Terms and Conditions, this offer is free of commission for the tenant/buyer, as we are paid by the owner.

Features

  • Aufwendige Fassade
  • Rooftop terrace
  • Innenhof
  • Child elevator
  • Passenger elevators
  • Representative entrance area
  • Schallschutzverglasung

Energy certificate

Type of energy certificate Consumption certificate
Heating value 136.00000
Electricity value 187.00000
Primary energy source Fernwärme
Year of construction (energy certificate) 1975
Building type Non-residential building
Issue date 02.12.2021

Property description

• Zentrale Lage in unmittelbarer Nähe zum Hauptbahnhof

• Urbaner Mix aus Office, Praxis, Hotel und Retail

• Stilvolles Architekturkonzept und modernes Innendesign

• Duschräume und Umkleidekabinen im Untergeschoss vorhanden

• Hochwertiges Schallschutzkonzept

• Beste ÖPNV Anbindung

Location

Aufgrund der zentralen Lage in der Münchener Innenstadt ist beste Anbindung in alle Richtungen gegeben.