Skip to content

Industrial | 1.300 - 1.312 m²

IndustrialRent Property number: 514178@26

Property details

Address 65428 Rüsselsheim, Deutschland
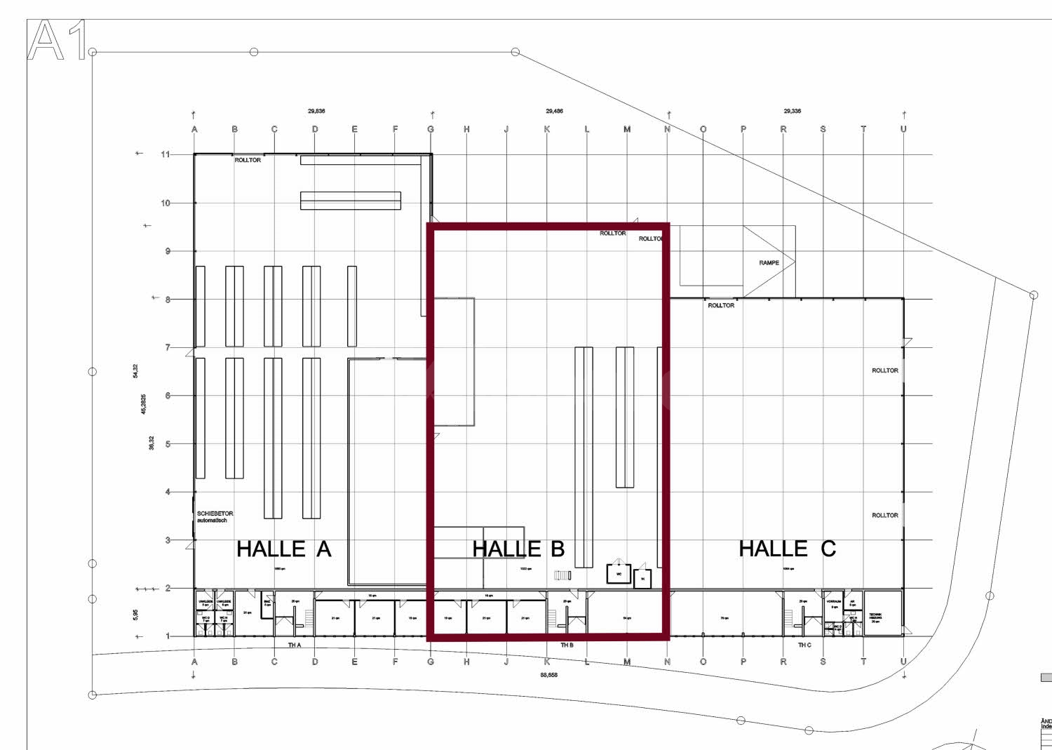
Hall area 1.312 m²
Total area 4.633 m²
Plot area 8.324 m²
Divisible from 1.300 m²
Price On request
Brokerage / Commission Commission subject
As discussed, the tenant pays our commission of 3.0 monthly net rents for a lease term of up to 5 years and 3.5 monthly net rents for a lease term of 5 years or more, plus ancillary/operating costs and statutory VAT. If the rental or lease agreements contain options for the extension of the rental or lease term and/or pre-letting rights, the commission shall be increased by 0.5 monthly net rents plus ancillary/operating costs and statutory VAT. The commission is due upon conclusion of the contract.

Features

  • Garage
  • Rolltor(e)
  • Ramp
  • Hall height: 5,2 m

Energy certificate

Year of construction (energy certificate) 1975
Building type Non-residential building