Skip to content

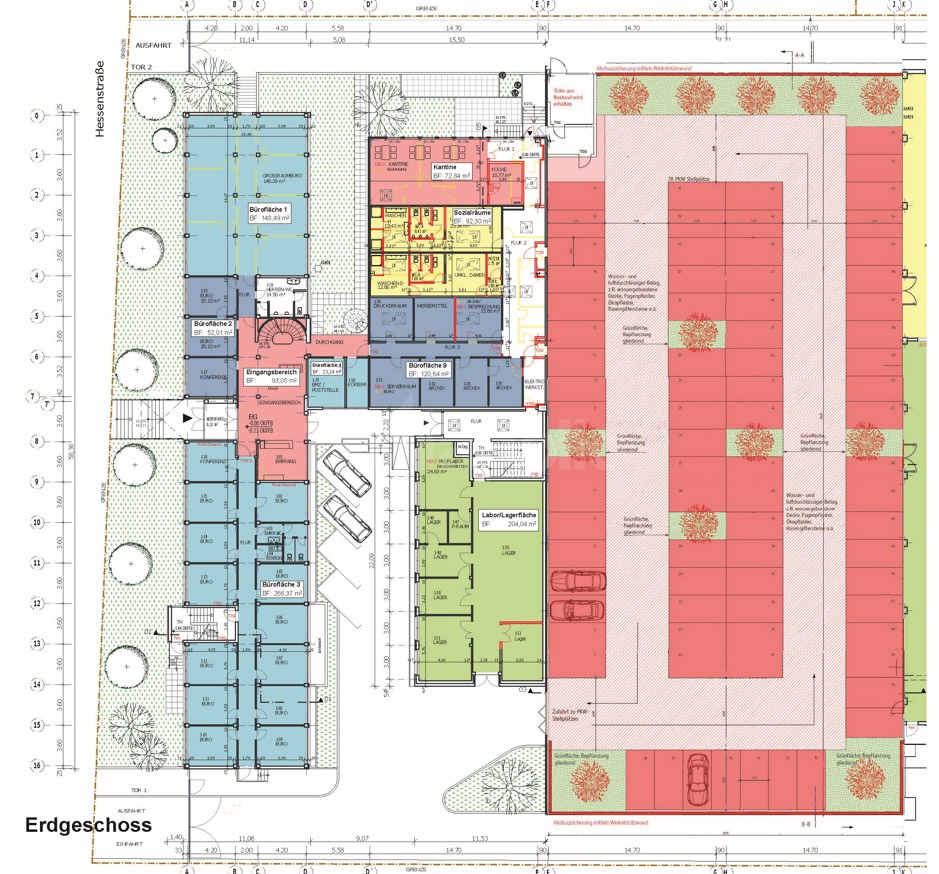
Industrial | 2.777 m²

IndustrialRent Property number: 515652@26

Property details

Address 65719 Hofheim am Taunus, Deutschland
Hall area 2.777 m²
Total area 5.153 m²
Plot area 9.574 m²
Price On request
Brokerage / Commission Commission subject
As discussed, the tenant pays our commission of 3.0 monthly net rents for a lease term of up to 5 years and 3.5 monthly net rents for a lease term of 5 years or more, plus ancillary/operating costs and statutory VAT. If the rental or lease agreements contain options for the extension of the rental or lease term and/or pre-letting rights, the commission shall be increased by 0.5 monthly net rents plus ancillary/operating costs and statutory VAT. The commission is due upon conclusion of the contract.

Features

  • Ramp
  • Hall height: 11,5 m

Energy certificate

Year of construction (energy certificate) 1974
Building type Non-residential building