Skip to content

F-West Höchst/Unterliederbach | 172 - 1,174 sq m

OfficeRent Property number: 501982@22

Property details

Address 65929 Frankfurt am Main, Deutschland
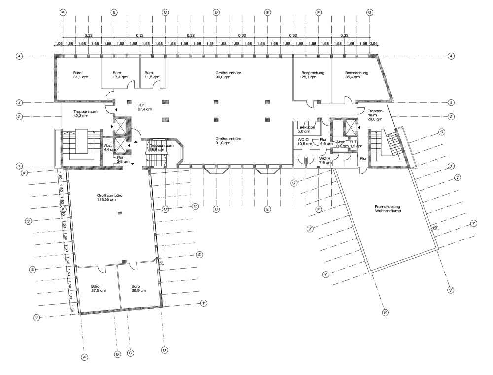
Office area 1.174 m²
Total area 4.253 m²
Divisible from 172 m²
Price On request
Brokerage / Commission Commission subject
As discussed, the tenant pays our commission of 3.0 monthly net rents for a lease term of up to 5 years and 3.5 monthly net rents for a lease term of 5 years or more, plus ancillary/operating costs and statutory VAT. If the rental or lease agreements contain options for the extension of the rental or lease term and/or pre-letting rights, the commission shall be increased by 0.5 monthly net rents plus ancillary/operating costs and statutory VAT. By net monthly rent we mean the rent for all rooms and space rented, i.e. also taking into account rented ancillary space, in particular storage/archive space, car parking spaces, etc. The commission is due upon conclusion of the contract.

Features

  • Energieausweis vorhanden

Energy certificate

Type of energy certificate Demand certificate
Electricity value 294.70000
Primary energy source Strom
Year of construction (energy certificate) 1963
Building type Non-residential building
Issue date 23.04.2009

Property description

Die Liegenschaft befindet sich im Stadtteil Höchst, westlich von Frankfurt gelegen. Die Innenstadt ist mit dem Pkw in ca. 15 Minuten erreichbar, die Autobahn A66 mit Anschluss an die A3 und A5 in ca. 5 Autominuten. Der Höchster Bahnhof, mit Anschluss an die S-Bahn sowie Restaurants, Cafés, Supermärkte, Banken und Geschäfte des täglichen Bedarfs, ist fußläufig erreichbar. Zum Brüningpark und Mainufer sind es ebenfalls nur wenige Gehminuten.

Die Büroflächen sind modern ausgestattet und ermöglichen verschiedene Raumaufteilungen. Sie verfügen über getrennte WC-Anlagen, einer Teeküche und einem außenliegendem Sonnenschutz.

Location

Höchst am Main ist seit 1928 Stadtteil von Frankfurt am Main, hat etwa 13.500 Einwohner und liegt rund 10 km westlich der Frankfurter Innenstadt an der Mündung der Nidda in den Main. Höchst ist im Gegensatz zu den meisten anderen Stadtteilen eine alte Stadt (Stadtrecht seit 1355) und bis heute das wichtigste städtische Subzentrum im Frankfurter Westen. Bis 1987 war Höchst Verwaltungssitz eines eigenen Landkreises, der seit 1928 den Namen Main-Taunus-Kreis trägt. Höchst ist Zentrum des Ortsbezirks Frankfurt-West mit 120.000 Einwohnern. Der Höchster Bahnhof ist ein Knoten im Regionalverkehr, hier halten zahlreiche Regionalexpresszüge von Frankfurt nach Wiesbaden und Limburg. Weitere wichtige Verbindungen bieten die S-Bahnen S1 (Wiesbaden-Hauptbahnhof-Rödermark-Ober-Roden) und S2 (Niedernhausen (Taunus)-Dietzenbach) sowie die Regionalbahnen 12 (früher K-Bahn) und 13 (Sodener Bahn). Mit der Regionaltangente West ist eine S-Bahn von Bad Homburg über den Höchster Bahnhof zum Frankfurter Flughafen in der Diskussion.

Unterliederbach befindet sich im Nordwesten des Ortsbezirks 6 (Frankfurt-West), etwa 11 km westlich der Innenstadt. Er grenzt im Westen an den Stadtteil Zeilsheim und die Gemarkung Sindlingen, im Südosten an Höchst und im Nordosten an Sossenheim. Im benachbarten Main-Taunus-Kreis grenzt Unterliederbach an die Gemeinden Liederbach am Taunus und Sulzbach. Unterliederbach liegt südlich der A 66 und ist mit zwei Anschlussstellen angebunden. Die Anschlussstelle „Frankfurt-Höchst“ (16) befindet sich an der Stadtgrenze quer zur Königsteiner Straße, während „Kelkheim“ (15) an der Schmalkaldener Straße liegt und nur von bzw. in Richtung Innenstadt befahrbar ist. Wichtige Hauptstraße in Nord-Süd-Richtung ist neben der Königsteiner Straße die Liederbacher Straße.