Zum Inhalt springen

F-West Höchst/Unterliederbach | 172 - 1.174 m²

BüroMieten Objektnummer: 501982@22

Objektdetails

Adresse 65929 Frankfurt am Main, Deutschland
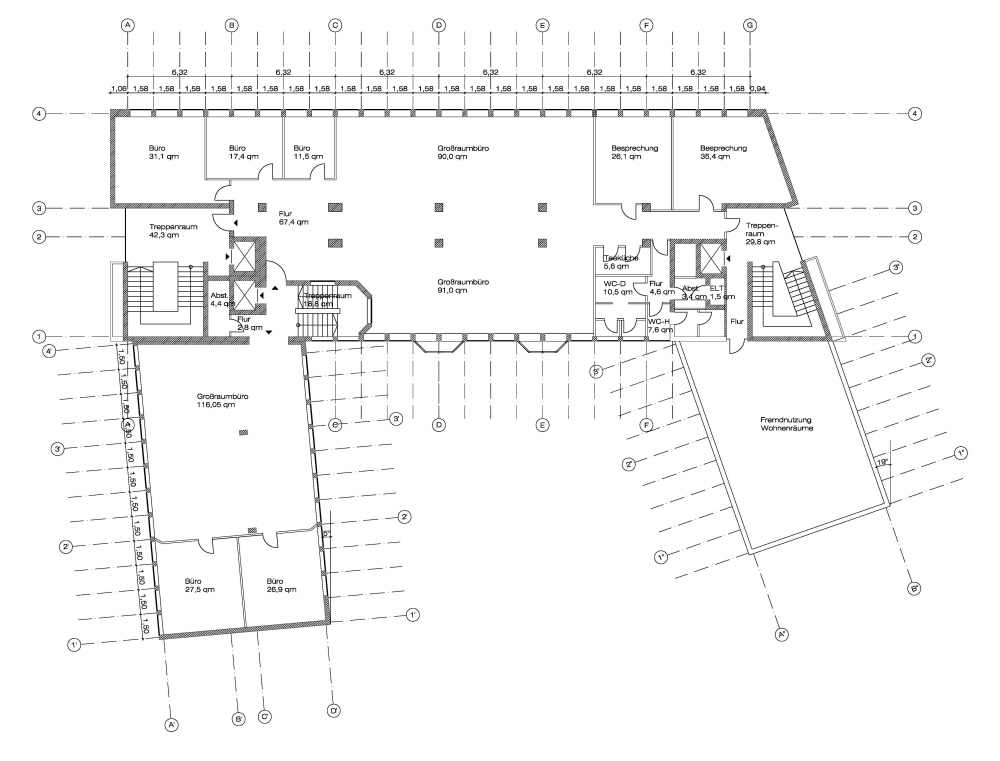
Bürofläche 1.174 m²
Gesamtfläche 4.253 m²
Teilbar ab 172 m²
Preis Auf Anfrage
Courtage / Provision Provisionspflichtig
Wie besprochen, zahlt der Mieter im Falle eines Mietvertragsabschlusses, unsere Provision in Höhe von 3,0 Netto-Monatsmieten bei einer Mietvertragslaufzeit von bis zu 5 Jahren und 3,5 Netto-Monatsmieten ab 5 Jahren jeweils zzgl. Neben-/ Betriebskosten und gesetzlich geltender Mehrwertsteuer. Enthalten die Miet- oder Pachtverträge Optionen für die Verlängerung der Miet- oder Pachtzeit und/oder Vormietrechte, so erhöht sich die Provision jeweils um 0,5 Netto-Monatsmieten zzgl. Neben-/ Betriebskosten und gesetzlich geltender Mehrwertsteuer. Unter Netto-Monatsmiete verstehen wir die Miete für alle angemieteten Räume und Flächen, d.h. auch unter Berücksichtigung angemieteter Nebenflächen, insbesondere Lager-/Archivflächen, Pkw-Stellplätze etc.. Die Provision ist bei Vertragsabschluss fällig.

Ausstattung

  • Energieausweis vorhanden

Energieausweis

Art des Energieausweises Bedarfsausweis
Stromwert 294.70000
Primärenergieträger Strom
Baujahr (Energieausweis) 1963
Gebäudeart Nichtwohngebäude
Ausstellungsdatum 23.04.2009

Objektbeschreibung

Die Liegenschaft befindet sich im Stadtteil Höchst, westlich von Frankfurt gelegen. Die Innenstadt ist mit dem Pkw in ca. 15 Minuten erreichbar, die Autobahn A66 mit Anschluss an die A3 und A5 in ca. 5 Autominuten. Der Höchster Bahnhof, mit Anschluss an die S-Bahn sowie Restaurants, Cafés, Supermärkte, Banken und Geschäfte des täglichen Bedarfs, ist fußläufig erreichbar. Zum Brüningpark und Mainufer sind es ebenfalls nur wenige Gehminuten.

Die Büroflächen sind modern ausgestattet und ermöglichen verschiedene Raumaufteilungen. Sie verfügen über getrennte WC-Anlagen, einer Teeküche und einem außenliegendem Sonnenschutz.

Lage

Höchst am Main ist seit 1928 Stadtteil von Frankfurt am Main, hat etwa 13.500 Einwohner und liegt rund 10 km westlich der Frankfurter Innenstadt an der Mündung der Nidda in den Main. Höchst ist im Gegensatz zu den meisten anderen Stadtteilen eine alte Stadt (Stadtrecht seit 1355) und bis heute das wichtigste städtische Subzentrum im Frankfurter Westen. Bis 1987 war Höchst Verwaltungssitz eines eigenen Landkreises, der seit 1928 den Namen Main-Taunus-Kreis trägt. Höchst ist Zentrum des Ortsbezirks Frankfurt-West mit 120.000 Einwohnern. Der Höchster Bahnhof ist ein Knoten im Regionalverkehr, hier halten zahlreiche Regionalexpresszüge von Frankfurt nach Wiesbaden und Limburg. Weitere wichtige Verbindungen bieten die S-Bahnen S1 (Wiesbaden-Hauptbahnhof-Rödermark-Ober-Roden) und S2 (Niedernhausen (Taunus)-Dietzenbach) sowie die Regionalbahnen 12 (früher K-Bahn) und 13 (Sodener Bahn). Mit der Regionaltangente West ist eine S-Bahn von Bad Homburg über den Höchster Bahnhof zum Frankfurter Flughafen in der Diskussion.

Unterliederbach befindet sich im Nordwesten des Ortsbezirks 6 (Frankfurt-West), etwa 11 km westlich der Innenstadt. Er grenzt im Westen an den Stadtteil Zeilsheim und die Gemarkung Sindlingen, im Südosten an Höchst und im Nordosten an Sossenheim. Im benachbarten Main-Taunus-Kreis grenzt Unterliederbach an die Gemeinden Liederbach am Taunus und Sulzbach. Unterliederbach liegt südlich der A 66 und ist mit zwei Anschlussstellen angebunden. Die Anschlussstelle „Frankfurt-Höchst“ (16) befindet sich an der Stadtgrenze quer zur Königsteiner Straße, während „Kelkheim“ (15) an der Schmalkaldener Straße liegt und nur von bzw. in Richtung Innenstadt befahrbar ist. Wichtige Hauptstraße in Nord-Süd-Richtung ist neben der Königsteiner Straße die Liederbacher Straße.