Skip to content

New construction project | 9,709 m² | from €3.25

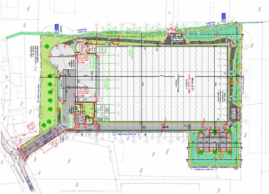
IndustrialRent Property number: 517370@26

Property details

Address 47441 Moers, Deutschland
Hall area 9.709 m²
Total area 10.259 m²
Plot area 21.000 m²
Rental price 3,25 EUR/m²
Brokerage / Commission Commission free
Deviating from our enclosed General Terms and Conditions, this offer is free of commission for the tenant/buyer, as we are paid by the owner.

Features

  • Ramp
  • Hall height: 12 m

Energy certificate

Year of construction (energy certificate) 2025
Building type Non-residential building