Zum Inhalt springen

Neubauprojektierung | 9.709 m² | ab 3,25 EUR

IndustrieMieten Objektnummer: 517370@26

Objektdetails

Adresse 47441 Moers, Deutschland
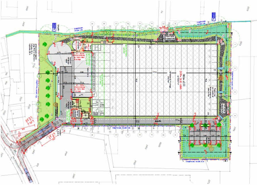
Hallenfläche 9.709 m²
Gesamtfläche 10.259 m²
Grundstücksfläche 21.000 m²
Mietpreis 3,25 EUR/m²
Courtage / Provision Provisionsfrei
Abweichend von unseren beigefügten Allgemeinen Geschäftsbedingungen erfolgt dieses Angebot provisionsfrei für den Mieter/Käufer, da wir unsere Provision vom Eigentümer erhalten.

Ausstattung

  • Rampe
  • Hallenhöhe: 12 m

Energieausweis

Baujahr (Energieausweis) 2025
Gebäudeart Nichtwohngebäude