Zum Inhalt springen

F-West Hausen | 360 - 1.625 m²

BüroMieten Objektnummer: 506900@22

Objektdetails

Adresse 60487 Frankfurt am Main, Deutschland
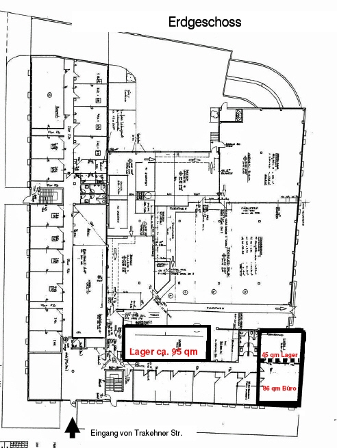
Bürofläche 1.625 m²
Gesamtfläche 8.504 m²
Grundstücksfläche 4.089 m²
Teilbar ab 360 m²
Kaufpreis 9.369.000 EUR
Courtage / Provision Provisionspflichtig
Wie besprochen, zahlt der Mieter im Falle eines Mietvertragsabschlusses, unsere Provision in Höhe von 3,0 Netto-Monatsmieten bei einer Mietvertragslaufzeit von bis zu 5 Jahren und 3,5 Netto-Monatsmieten ab 5 Jahren jeweils zzgl. Neben-/ Betriebskosten und gesetzlich geltender Mehrwertsteuer. Enthalten die Miet- oder Pachtverträge Optionen für die Verlängerung der Miet- oder Pachtzeit und/oder Vormietrechte, so erhöht sich die Provision jeweils um 0,5 Netto-Monatsmieten zzgl. Neben-/ Betriebskosten und gesetzlich geltender Mehrwertsteuer. Unter Netto-Monatsmiete verstehen wir die Miete für alle angemieteten Räume und Flächen, d.h. auch unter Berücksichtigung angemieteter Nebenflächen, insbesondere Lager-/Archivflächen, Pkw-Stellplätze etc.. Die Provision ist bei Vertragsabschluss fällig.

Ausstattung

  • Code-Karten-System
  • Kameraüberwachung
  • Personenaufzüge
  • Repräsentativer Eingangsbereich

Energieausweis

Art des Energieausweises Verbrauchsausweis
Wärmewert 110.50000
Stromwert 8.30000
Primärenergieträger Gas
Baujahr (Energieausweis) 1993
Gebäudeart Nichtwohngebäude
Ausstellungsdatum 24.04.2014

Objektbeschreibung

Moderne Büroliegenschaft in Frankfurt / Hausen welche im Jahr 2012 zusammen mit dem Nachbargebäude "Trakehner Straße 7-9" umfassend saniert wurde. Die Mietflächen werden nach Mieterwunsch ausgebaut.

Lage

Das Objekt befindet sich in ausgezeichneter Lage im Westen von Frankfurt, im Stadtteil Hausen. Diese Lage bietet einen optimalen Anschluss an den ÖPNV, in der unmittelbaren Umgebung befinden sich mehrere U-Bahnstationen worüber man innerhalb kurzer Zeit in die Innenstadt von Frankfurt gelangt. Aufgrund der Nähe zur Ludwig-Landmann-Straße (B44) gelangt man innerhalb weniger Minuten zur Autobahn A66 und hat darüber hinaus auch weiteren Anschluss an das gesamte Autobahnnetzwerk.