Zum Inhalt springen

Heinrich-Hertz-Park | 379 - 1.895 m² | ab 7,00 EUR

BüroMieten Objektnummer: 508874@22

Objektdetails

Adresse 63303 Dreieich, Deutschland
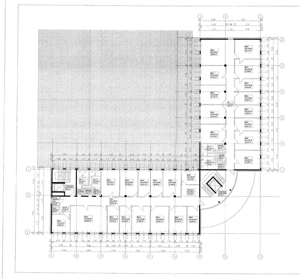
Bürofläche 1.895 m²
Gesamtfläche 10.083 m²
Grundstücksfläche 20.482 m²
Teilbar ab 379 m²
Mietpreis 7,00 EUR/m²
Courtage / Provision Provisionspflichtig
Wie besprochen, zahlt der Mieter im Falle eines Mietvertragsabschlusses, unsere Provision in Höhe von 3,0 Netto-Monatsmieten bei einer Mietvertragslaufzeit von bis zu 5 Jahren und 3,5 Netto-Monatsmieten ab 5 Jahren jeweils zzgl. Neben-/ Betriebskosten und gesetzlich geltender Mehrwertsteuer. Enthalten die Miet- oder Pachtverträge Optionen für die Verlängerung der Miet- oder Pachtzeit und/oder Vormietrechte, so erhöht sich die Provision jeweils um 0,5 Netto-Monatsmieten zzgl. Neben-/ Betriebskosten und gesetzlich geltender Mehrwertsteuer. Unter Netto-Monatsmiete verstehen wir die Miete für alle angemieteten Räume und Flächen, d.h. auch unter Berücksichtigung angemieteter Nebenflächen, insbesondere Lager-/Archivflächen, Pkw-Stellplätze etc.. Die Provision ist bei Vertragsabschluss fällig.

Ausstattung

  • Ausgestattete Teeküche (n)
  • Einbauschränke
  • Rampe
  • Hallenhöhe: 5 m

Energieausweis

Baujahr (Energieausweis) 1990
Gebäudeart Nichtwohngebäude

Objektbeschreibung

Im Gewerbegebiet Dreieichenhain. ca. 15 km südlich von Frankfurt am Main. Sehr gute Verkehrsanbindung zu den Autobahnen A661, A3 und A5 sowie zu öffentlichen Verkehrsmitteln. Der Rhein-Main-Airport ist in ca. 15 Autominuten zu erreichen.

Lage

Gewerbegebiet Dreieichenhain

Die Stadt Dreieich liegt ca. 15 km südlich von Frankfurt mit guter Anbindung an öffentlichen Verkehrsmittel und den Autobahnen A661 und A5. Das Objekt befindet sich im Gewerbegebiet Dreieichenhain.

In ca. 5 Minuten erreicht man den Autobahnanschluss Langen mit direkter Zufahrt zur A661 und dem Zubringer zur A5. Der Flughafen ist in ca. 15 Autominuten zu erreichen. In fussläufiger Entfernung befindet sich eine S-Bahnhaltestelle des RMV mit direkter Verbindung zum Frankfurter Hauptbahnhof