Zum Inhalt springen

Business Forum Dreieich | 300 - 2.403 m² | ab 8,50 EUR

BüroMieten Objektnummer: 508919@22

Objektdetails

Adresse 63303 Dreieich, Deutschland
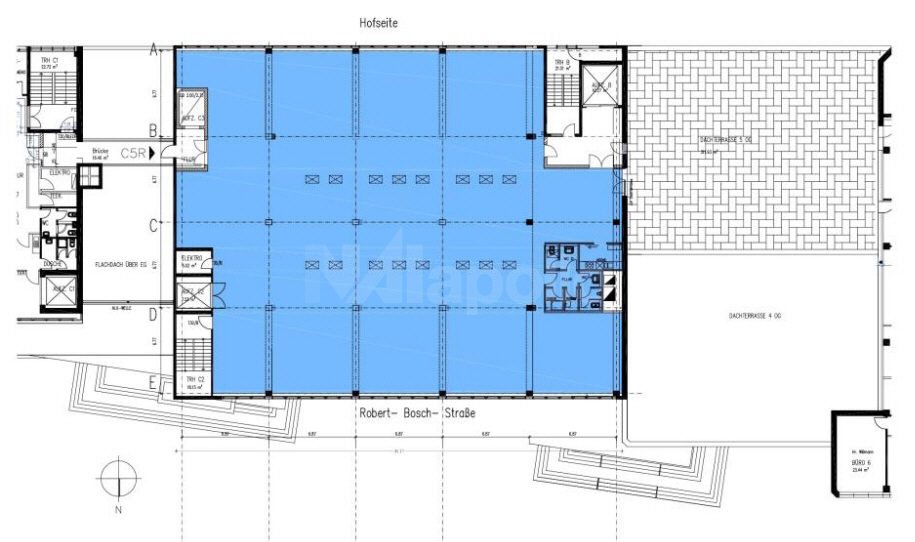
Bürofläche 2.403 m²
Gesamtfläche 26.884 m²
Grundstücksfläche 20.000 m²
Teilbar ab 300 m²
Mietpreis 8,50 EUR/m²
Courtage / Provision Provisionspflichtig
Wie besprochen, zahlt der Mieter im Falle eines Mietvertragsabschlusses, unsere Provision in Höhe von 3,0 Netto-Monatsmieten bei einer Mietvertragslaufzeit von bis zu 5 Jahren und 3,5 Netto-Monatsmieten ab 5 Jahren jeweils zzgl. Neben-/ Betriebskosten und gesetzlich geltender Mehrwertsteuer. Enthalten die Miet- oder Pachtverträge Optionen für die Verlängerung der Miet- oder Pachtzeit und/oder Vormietrechte, so erhöht sich die Provision jeweils um 0,5 Netto-Monatsmieten zzgl. Neben-/ Betriebskosten und gesetzlich geltender Mehrwertsteuer. Unter Netto-Monatsmiete verstehen wir die Miete für alle angemieteten Räume und Flächen, d.h. auch unter Berücksichtigung angemieteter Nebenflächen, insbesondere Lager-/Archivflächen, Pkw-Stellplätze etc.. Die Provision ist bei Vertragsabschluss fällig.

Ausstattung

  • Außenwerbung möglich
  • ISDN-Verkabelung
  • Lastenaufzug
  • Personenaufzug
  • Personenaufzüge
  • Repräsentativer Eingangsbereich
  • Sanitäreinrichtungen getrennte
  • Schallschutzverglasung
  • Teeküche(n)

Energieausweis

Art des Energieausweises Verbrauchsausweis
Wärmewert 97.83000
Stromwert 59.56000
Primärenergieträger Fernwärme
Baujahr (Energieausweis) 1997
Gebäudeart Nichtwohngebäude
Ausstellungsdatum 02.03.2010

Objektbeschreibung

Das Business Forum befindet sich im Gewerbegebiet von Dreieich-Sprendlingen. Sehr gute Anbindung zur A661 die sich in ca. 2 km Entfernung befindet. Das Frankfurter Kreuz und der Rhein-Main-Flughafen sind ca. 15 km entfernt. Eine S-Bahn ist ab Neu-Isenburg zu erreichen, es besteht eine gute Busverbindung dorthin. Unternehmen wie Compaq, Wrangler, Ellen Betrix u. v. a. haben sich an diesem Standort etabliert.

Lage

Im Gewerbegebiet Dreieich-Sprendlingen, zwischen Robert-Bosch-Strasse und Frankfurter Strasse gelegen.