Zum Inhalt springen

LUXX | 343 - 686 m² | ab 13,50 EUR

BüroMieten Objektnummer: 509632@22

Objektdetails

Adresse 60489 Frankfurt am Main, Deutschland
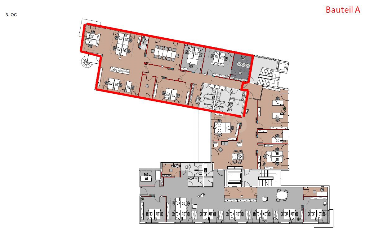
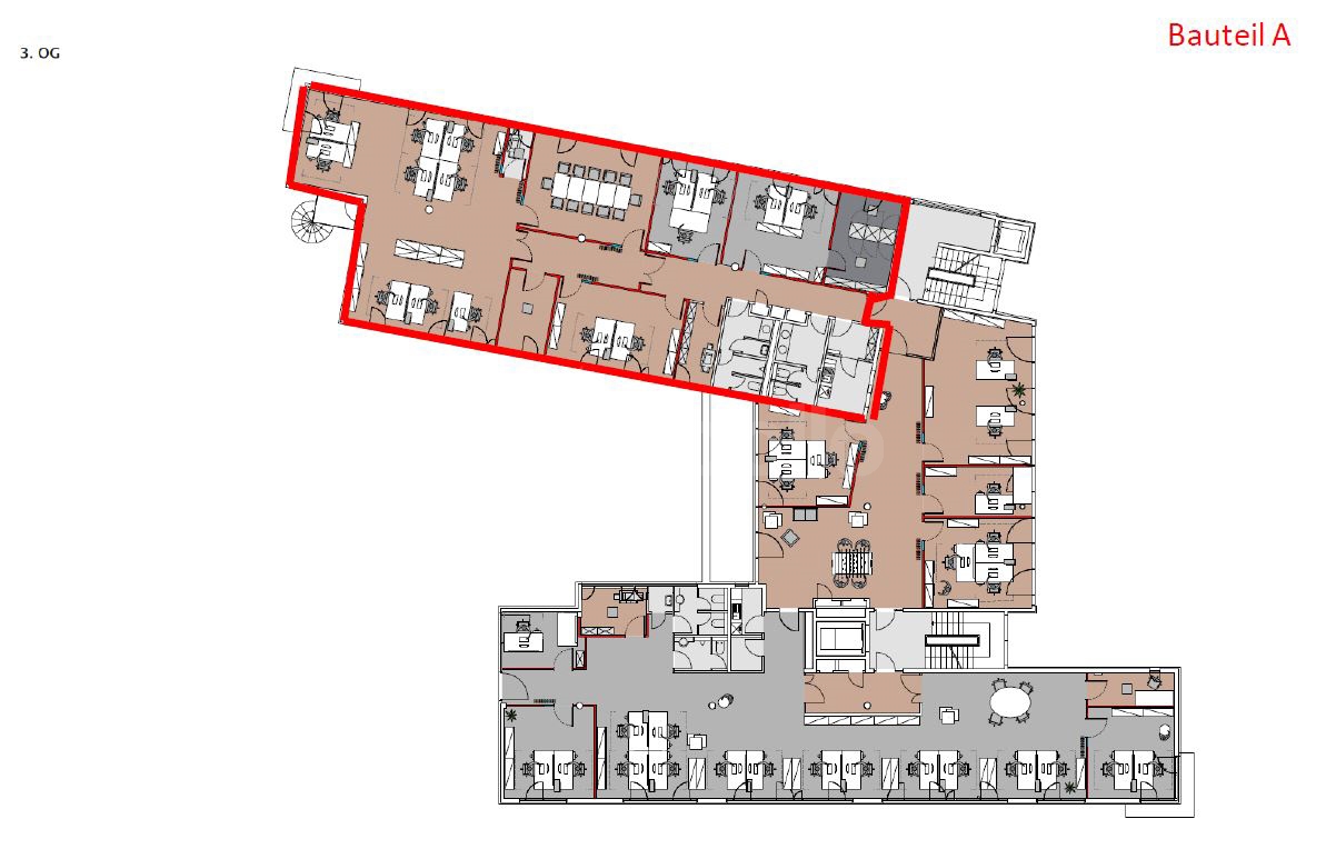
Bürofläche 686 m²
Gesamtfläche 5.278 m²
Grundstücksfläche 2.051 m²
Teilbar ab 343 m²
Mietpreis 13,50 EUR/m²
Courtage / Provision Provisionspflichtig
Wie besprochen, zahlt der Mieter im Falle eines Mietvertragsabschlusses, unsere Provision in Höhe von 3,0 Netto-Monatsmieten bei einer Mietvertragslaufzeit von bis zu 5 Jahren und 3,5 Netto-Monatsmieten ab 5 Jahren jeweils zzgl. Neben-/ Betriebskosten und gesetzlich geltender Mehrwertsteuer. Enthalten die Miet- oder Pachtverträge Optionen für die Verlängerung der Miet- oder Pachtzeit und/oder Vormietrechte, so erhöht sich die Provision jeweils um 0,5 Netto-Monatsmieten zzgl. Neben-/ Betriebskosten und gesetzlich geltender Mehrwertsteuer. Unter Netto-Monatsmiete verstehen wir die Miete für alle angemieteten Räume und Flächen, d.h. auch unter Berücksichtigung angemieteter Nebenflächen, insbesondere Lager-/Archivflächen, Pkw-Stellplätze etc.. Die Provision ist bei Vertragsabschluss fällig.

Ausstattung

  • Code-Karten-System
  • Dachterrasse
  • Gegensprechanlage
  • Personenaufzüge
  • Repräsentativer Eingangsbereich

Energieausweis

Art des Energieausweises Verbrauchsausweis
Wärmewert 108.00000
Stromwert 51.20000
Primärenergieträger Erdgas leicht
Baujahr (Energieausweis) 2001
Gebäudeart Nichtwohngebäude
Ausstellungsdatum 09.10.2014

Objektbeschreibung

Das Gebäude wird komplett umgestaltet und nach Wunsch der zukünftigen Mieter hergerichtet. BT C ist jeweils nur gemeinsam mit BT A oder BT B anmietbar.

Die Terrassenflächen werden anteilig auf die Mietfläche umgelegt. Unweit des berühmten Bankenviertels, im Nordwesten der Stadt treffen Sie auf das LUXX. Ein Bürogebäude, das nach seiner Entstehung 2002 aufwendig umgebaut und luxuriös modernisiert wurde. Auf 5 exklusiv ausgestatteten Stockwerken ergänzen sich im LUXX Funktionalität und Stil zu einem Bürohaus, das keine Wünsche offen lässt. Hochwertiges Interieur, flexibel darstellbare Büroflächen und die äußerst verkehrsgünstige Lage machen das LUXX zu einer ganz besonderen Büroadresse der Frankfurter City.

Lage

Zentrale Lage, an der S-Bahn-Station