Zum Inhalt springen

Der Dornhof | 507 - 3.896 m² | ab 12,50 EUR

BüroMieten Objektnummer: 512204@22

Objektdetails

Adresse 63263 Neu-Isenburg, Deutschland
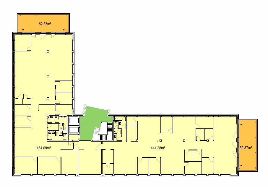
Bürofläche 3.896 m²
Gesamtfläche 10.083 m²
Grundstücksfläche 13.805 m²
Teilbar ab 507 m²
Mietpreis 12,50 EUR/m²
Courtage / Provision Provisionspflichtig
Wie besprochen, zahlt der Mieter im Falle eines Mietvertragsabschlusses, unsere Provision in Höhe von 3,0 Netto-Monatsmieten bei einer Mietvertragslaufzeit von bis zu 5 Jahren und 3,5 Netto-Monatsmieten ab 5 Jahren jeweils zzgl. Neben-/ Betriebskosten und gesetzlich geltender Mehrwertsteuer. Enthalten die Miet- oder Pachtverträge Optionen für die Verlängerung der Miet- oder Pachtzeit und/oder Vormietrechte, so erhöht sich die Provision jeweils um 0,5 Netto-Monatsmieten zzgl. Neben-/ Betriebskosten und gesetzlich geltender Mehrwertsteuer. Unter Netto-Monatsmiete verstehen wir die Miete für alle angemieteten Räume und Flächen, d.h. auch unter Berücksichtigung angemieteter Nebenflächen, insbesondere Lager-/Archivflächen, Pkw-Stellplätze etc.. Die Provision ist bei Vertragsabschluss fällig.

Ausstattung

  • Ausgestattete Teeküche (n)
  • Balkon
  • Behindertengerechte Ausstattung
  • Behindertengerechte Toilette
  • Behindertengerechter Eingangsbereich
  • Behindertengerechter Personenaufzug
  • Code-Karten-System
  • Personenaufzug
  • Zugangskonstrollsystem

Energieausweis

Art des Energieausweises Verbrauchsausweis
Wärmewert 67.80000
Stromwert 33.90000
Primärenergieträger Erdgas leicht
Baujahr (Energieausweis) 2009
Gebäudeart Nichtwohngebäude
Ausstellungsdatum 15.11.2022

Objektbeschreibung

  • Design, Ausstattung und Materialien von hoher Qualität
  • Individuelle arbeitsplatzgerecht Raumkonzepte
  • Attraktives Umfeld mit viel Grün, großzügiges Stellplatzangebot

Weitere Ausstattung erfolgt nach Absprache mit dem Vermieter

** Bei der hier angebotenen Fläche im 3. OG handelt es sich um eine Untermietfläche bis 31.12.2025.

Lage

Baugebiet: Gewerbegebiet