Zum Inhalt springen

Campus Oberhafen | 2.400 m²

IndustrieMieten Objektnummer: 515350@26

Objektdetails

Adresse 60386 Frankfurt am Main, Deutschland
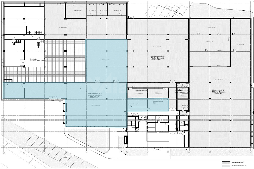
Hallenfläche 2.400 m²
Gesamtfläche 14.184 m²
Preis Auf Anfrage
Courtage / Provision Provisionsfrei
Abweichend von unseren beigefügten Allgemeinen Geschäftsbedingungen erfolgt dieses Angebot provisionsfrei für den Mieter/Käufer, da wir unsere Provision vom Eigentümer erhalten.

Ausstattung

  • Hallenhöhe: 4 m

Energieausweis

Baujahr (Energieausweis) 1983
Gebäudeart Nichtwohngebäude

Objektbeschreibung

Auf dem ehemaligen Gelände des städtischen Gaswerkes wurde das Gebäude von der Degussa AG als Rechenzentrums- / Bürogebäude errichtet. Es umfasst ca. 10.284 m² Mietfläche, wovon ca. 4.762 m² als eingeschossiger Flachbau errichtet wurde und im Kern den ehem. Rechnerraum der EDV-Anlagen, Lager- und Büroflächen sowie die Haustechnik enthält.

Über dem Erdgeschoss befindet sich ein aufgesetzter Geschossbau mit 5 Obergeschossen, die als Bürofläche genutzt werden. Ein weiteres Obergeschoss könnte zur Nachverdichtung aus statischer Sicht errichtet werden.

Lage

Der Stadtteil liegt im Ortsbezirk Innenstadt IV und grenzt im Westen an den Stadtteil Innenstadt, im Nordwesten an das Frankfurter Nordend, im Norden an Frankfurt-Bornheim, im Nordosten an den Riederwald im Osten an Frankfurt-Fechenheim, und im Süden auf der gegenüberliegenden Mainseite an Offenbach am Main, Frankfurt-Oberrad und Sachsenhausen-Nord. Mit dem Frankfurter Zoo beherbergt das Ostend auch eine über Frankfurt weit hinaus bekannte Institution. Jedoch hat der Stadtteil durch die durchgeführten Sanierungsmaßnahmen in letzter Zeit stark an Attraktivität gewonnen. Das Ostend ist mit dem S-Bahn-Haltepunkt Ostendstraße an das Netz der S-Bahn Rhein-Main angeschlossen. Bis auf die S7 halten dort sämtliche S-Bahn-Linien. Zudem gibt es mehrere U-Bahn-Stationen der Linien U 6 und U 7, die Naherschließung ergänzen die Linien 11 (Fechenheim – Höchst) und 14 (Bornheim – Neu-Isenburg) der Frankfurter Straßenbahn. Mit dem Ostbahnhof verfügt es zudem über einen Regionalbahnhof für die Züge Richtung Hanau und Würzburg. Die Hauptstraße des Stadtteils ist die Hanauer Landstraße.