Zum Inhalt springen

Industrie | 17.800 m²

IndustrieMieten Objektnummer: 517675@26

Objektdetails

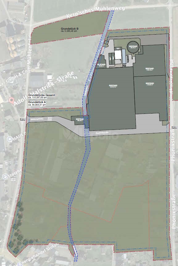
Adresse 53881 Euskirchen, Deutschland
Hallenfläche 17.800 m²
Gesamtfläche 18.082 m²
Grundstücksfläche 118.500 m²
Preis Auf Anfrage
Courtage / Provision Provisionspflichtig
Wie besprochen, zahlt der Mieter im Falle eines Mietvertragsabschlusses, unsere Provision in Höhe von 3,0 Netto-Monatsmieten bei einer Mietvertragslaufzeit von bis zu 5 Jahren und 3,5 Netto-Monatsmieten ab 5 Jahren jeweils zzgl. Neben-/ Betriebskosten und gesetzlich geltender Mehrwertsteuer. Enthalten die Miet- oder Pachtverträge Optionen für die Verlängerung der Miet- oder Pachtzeit und/oder Vormietrechte, so erhöht sich die Provision jeweils um 0,5 Netto-Monatsmieten zzgl. Neben-/ Betriebskosten und gesetzlich geltender Mehrwertsteuer. Die Provision ist bei Vertragsabschluss fällig.

Ausstattung

  • Rampe
  • Hallenhöhe: 12 m

Energieausweis

Baujahr (Energieausweis) 1970
Gebäudeart Nichtwohngebäude