Zum Inhalt springen

RIVAGE | Die schönsten Bleiben an der Gracht

WohnungKaufen Objektnummer: living-22-139_5

Objektdetails

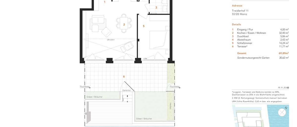
Adresse 55116 Mainz, Deutschland
Wohnfläche 70 m²
Kaufpreis 599.900 EUR

Ausstattung

  • Fußbodenheizung
  • Personenaufzug

11 Gute Gründe in Hafenlage – Hier dockt das Leben an

  1. Premiumlage direkt am Hafenbecken mit Yachthafen und historischem Kran
  2. Aus jeder Wohnung Ausblick auf Grachten oder Hafenbecken
  3. Terrasse mit Garten und eigenem Steg zur Gracht in Erdgeschosswohnungen
  4. Eigene Dachterrasse mit Dachgarten für 6 exklusive Dachgeschosswohnungen
  5. Verwendung von hochwertigen Materialien in sämtlichen Bauteilen
  6. Smart-Home-Komponenten für Beleuchtung und Sonnenschutz
  7. Hochwertige Holzböden mit Fußbodenheizung mit Einzelraumregelung
  8. Herausragendes Architekturkonzept aus überregionalem Architektenwettbewerb
  9. Stellplätze für PKW inklusive Vorrüstung für Lademöglichkeit für E-Autos in hauseigener Tiefgarage
  10. Viel Platz für Fahrräder, E-Bikes und Lastenräder
  11. Hohe Nachhaltigkeitsstandards und Energieeffizienz in Bau und Gebäudebetrieb

Ökologie hoch 7

  1. ESG-konform in Bezug auf das Umweltziel Klimaschutz (ESG = Environmental, Social, Governance)
  2. Photovoltaikanlage auf dem Dach
  3. Beheizung über lokalen Fernwärmeanschluss der Mainzer Stadtwerke
  4. Intensive und extensive Dachbegrünung
  5. Schadstoffarme Baustoffe gemäß Kriterien der EU-Taxonomie
  6. Regenwasser-Retentionsflächen im Innenhof
  7. Mikroklimaverbesserung dank kühlender Grachten

Energieausweis

Art des Energieausweises Bedarfsausweis
Endenergiebedarf 56 kWh/(m²·a)
Energieeffizienzklasse B
Baujahr (Energieausweis) 2027
Gebäudeart Wohngebäude
Gültig bis 04.11.2034
Jahrgang 2014

Objektbeschreibung

RIVAGE | Willkommen Zuhause am Zollhafen

(Ein Projekt der LBBW Immobilien)

Das RIVAGE bietet mit seiner exklusiven Wasserlage im Mainzer Zollhafen als Teil einer Neubauquartiersentwicklung stilvolle Eigentumswohnungen mit hochwertiger Ausstattung. Das Gebäude bietet aufgrund seiner Lage direkte Blickbeziehungen zu der Mündung des Hafenbeckens in den Rhein.

Ob Gartenwohnung, Loft, Maisonette oder Townhouse – im RIVAGE können Sie genau so wohnen, wie es Ihren Bedürfnissen entspricht.

Die Wohnungsgrößen reichen von ca. 56-170m², sodass hier Singles, Paare und Familien ihr passendes Zuhause finden. Dabei verspricht die hochwertige Architektur wohldurchdachte Grundrisse mit lichtdurchfluteten Räumen. Die Auswahl ist nicht nur in Bezug auf die Wohnungstypen vielseitig, auch die Ausstattungslinien „Ligne Comfort“ sowie „Ligne Exclusive“ (Upgrade) ermöglichen ein Wohnen ganz nach individuellen Wünschen.

Auch Nachhaltigkeitsaspekte und ESG-Kriterien spielen bei der Planung und Umsetzung des RIVAGE eine wichtige Rolle. So wird eine Gold-Zertifizierung der Deutschen Gesellschaft für Nachhaltiges Bauen (DGNB) angestrebt. Die bauliche Ausführung erfolgt selbstverständlich nach KfW 55-Standard.

Die Nähe zum Wasser prägt nicht nur die Architektur, sondern ermöglicht auch einen einzigartigen Ausblick und direkten Zugang zur Uferpromenade, die zum Entspannen und Flanieren einlädt. Die Kombination aus urbanem Wohnen und naturnaher Lage schafft eine besondere Wohnatmosphäre, die Ruhe und Erholung mit maritimen Flair direkt vor der Haustür bietet.

Ihr Rendezvous mit der Zukunft.

Wir freuen uns auf Ihre Anfrage!

Lage

RIVAGE | Freuen Sie sich auf einen Ort, an dem die Seele zur Ruhe kommt

Das RIVAGE befindet sich in einer der attraktivsten Lagen von Mainz - zwischen Rhein und Grachten, zwischen Naturidyll und nachbarschaftlichen Höfen liegt Ihre Oase. Getreu der Weisheit: Zuhause ist, wo es am schönsten ist.

Die Verbindung aus Wasserlage und moderner Architektur macht diesen Standort zu einem einzigartigen Wohnort, der Lebensqualität und Urbanität vereint.

LEBENSKUNST IN RHEINKULTUR

Die Nachbarschaft bietet eine hervorragende Infrastruktur: In fußläufiger Entfernung befinden sich zahlreiche Einkaufsmöglichkeiten, darunter Supermärkte, Bäckereien und kleine Boutiquen sowie Restaurants und Cafés, die zu einem gemütlichen Verweilen einladen. Das Stadtzentrum von Mainz ist in wenigen Minuten erreichbar, was den Standort ideal für Pendler und Stadtliebhaber macht.

RHEIN-MAIN IST DEIN GANZES HERZ

Das RIVAGE ist hervorragend an den öffentlichen Nahverkehr angebunden. Mehrere Bus- und Straßenbahnlinien sind bequem zu Fuß erreichbar und ermöglichen eine schnelle Verbindung zum Mainzer Hauptbahnhof sowie in andere Stadtteile. Für Autofahrer bietet die nahegelegene Autobahnanbindung eine ideale Verbindung an die umliegenden Städte wie Wiesbaden, Frankfurt und Darmstadt.

VIS-À-VIS IM ZOLLHAFEN

Die direkte Lage am Wasser lädt zu entspannten Spaziergängen und Radtouren entlang der Grachten und des Rheinufers ein. In unmittelbarer Nähe befinden sich außerdem mehrere Parks und Grünanlagen, die zu sportlichen Aktivitäten und Erholung im Grünen einladen. Kulturfreunde kommen ebenfalls auf ihre Kosten: Die Altstadt von Mainz mit ihren historischen Bauwerken, Museen und Theatern ist nur einen Spaziergang entfernt.

Mit der Kombination aus zentraler Lage, ausgezeichneter Anbindung und naturnaher Umgebung ist das RIVAGE ein idealer Wohnort für alle, die eine hohe Lebensqualität und die Nähe zum Wasser und zur Stadt schätzen.

SONSTIGES

Die Angaben wurden uns vom Eigentümer / Verkäufer genannt. Änderungen und Irrtümer bleiben vorbehalten. Für die Richtigkeit übernehmen wir keine Gewähr. Die hier enthaltenen Flächenangaben sind unverbindlich. Maßgeblich sind die Inhalte des Kaufvertrages und dessen Anlagen. Das Angebot erfolgt freibleibend.