Zum Inhalt springen

Lyoner Stern | 246 - 2.196 m² | ab 14,00 EUR

BüroMieten Objektnummer: 507183@22

Objektdetails

Adresse 60528 Frankfurt am Main, Deutschland
Bürofläche 2.196 m²
Gesamtfläche 29.738 m²
Grundstücksfläche 14.440 m²
Teilbar ab 246 m²
Mietpreis 14,00 EUR/m²
Courtage / Provision Provisionspflichtig
Wie besprochen, zahlt der Mieter im Falle eines Mietvertragsabschlusses, unsere Provision in Höhe von 3,0 Netto-Monatsmieten bei einer Mietvertragslaufzeit von bis zu 5 Jahren und 3,5 Netto-Monatsmieten ab 5 Jahren jeweils zzgl. Neben-/ Betriebskosten und gesetzlich geltender Mehrwertsteuer. Enthalten die Miet- oder Pachtverträge Optionen für die Verlängerung der Miet- oder Pachtzeit und/oder Vormietrechte, so erhöht sich die Provision jeweils um 0,5 Netto-Monatsmieten zzgl. Neben-/ Betriebskosten und gesetzlich geltender Mehrwertsteuer. Unter Netto-Monatsmiete verstehen wir die Miete für alle angemieteten Räume und Flächen, d.h. auch unter Berücksichtigung angemieteter Nebenflächen, insbesondere Lager-/Archivflächen, Pkw-Stellplätze etc.. Die Provision ist bei Vertragsabschluss fällig.

Ausstattung

  • Energieausweis vorhanden
  • Lastenaufzug
  • MCI Worldcom-Anschluß
  • Personenaufzüge
  • Repräsentativer Eingangsbereich
  • Sprechanlage
  • Teeküche(n)

Energieausweis

Art des Energieausweises Verbrauchsausweis
Wärmewert 79.00000
Stromwert 15.00000
Primärenergieträger Fernwärme
Baujahr (Energieausweis) 1983
Gebäudeart Nichtwohngebäude
Ausstellungsdatum 06.08.2009

Objektbeschreibung

Das Bürocenter 'Lyoner Stern' wurde im Jahr 2002 einer grundlegenden Renovierung unterzogen.

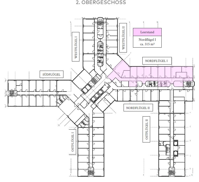
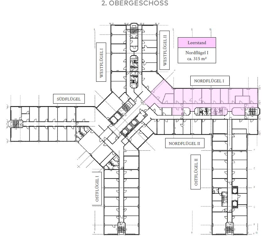
Das Gebäude besteht aus insgesamt 10 Etagen im Hauptgebäude, Hahnstraße 70. Der Gebäudeteil Hahnstraße 68 verfügt über einen separaten Zugang über 5 Etagen sowie einen großzügigen, nach Feng-Shui-Prinzipien eingerichteten Eingangsbereich mit Foyer, Galerie und kleiner Café-Bar.

Jeder Teilbereich hat einen separaten Eingang über Hahnstraße 70 (Hauptgebäude), einen eigenen Küchenbereich sowie einen Sanitärbereich. Die Bauteile N+O können verbunden werden.

Die Flächen im 2. OG West II und Nord I können zusammengelegt werden. Ebenso die Flächen im 6. OG West I und West II, West I und Süd oder West II und Süd.

Lage

Das Lyoner Quartier zählt zu den attraktivsten Bürostandorten in der Rhein-Main-Region. Nicht ohne Grund haben sich rund 400 Unternehmen jeder Größe für diesen Standort entschieden. Darunter auch so renommierte Unternehmen wie Nestlé und WISAG.

Sie alle schätzen die Nähe zum Flughafen und zur Frankfurter Innenstadt. Aber auch die gute Anbindung an den öffentlichen Personennahverkehr, die ausgedehnten Grünflächen sowie die Nähe zum Main und zum Stadtwald zählen zu den besonderen Vorzügen des Quartiers.