Zum Inhalt springen

City Gate | 544 - 1.098 m² | ab 12,50 EUR

BüroMieten Objektnummer: 509832@22

Objektdetails

Adresse 63263 Neu-Isenburg, Deutschland
Bürofläche 1.098 m²
Gesamtfläche 10.765 m²
Grundstücksfläche 5.839 m²
Teilbar ab 544 m²
Kaufpreis 27.500.000 EUR
Mietpreis 12,50 EUR/m²
Courtage / Provision Provisionspflichtig
Wie besprochen, zahlt der Mieter im Falle eines Mietvertragsabschlusses, unsere Provision in Höhe von 3,0 Netto-Monatsmieten bei einer Mietvertragslaufzeit von bis zu 5 Jahren und 3,5 Netto-Monatsmieten ab 5 Jahren jeweils zzgl. Neben-/ Betriebskosten und gesetzlich geltender Mehrwertsteuer. Enthalten die Miet- oder Pachtverträge Optionen für die Verlängerung der Miet- oder Pachtzeit und/oder Vormietrechte, so erhöht sich die Provision jeweils um 0,5 Netto-Monatsmieten zzgl. Neben-/ Betriebskosten und gesetzlich geltender Mehrwertsteuer. Unter Netto-Monatsmiete verstehen wir die Miete für alle angemieteten Räume und Flächen, d.h. auch unter Berücksichtigung angemieteter Nebenflächen, insbesondere Lager-/Archivflächen, Pkw-Stellplätze etc.. Die Provision ist bei Vertragsabschluss fällig.

Ausstattung

  • Natursteinfassade
  • Teeküche(n)

Energieausweis

Art des Energieausweises Bedarfsausweis
Endenergiebedarf 217 kWh/(m²·a)
Wärmewert 149.50000
Stromwert 24.00000
Primärenergieträger Erdgas schwer, Strom
Baujahr (Energieausweis) 2001
Gebäudeart Nichtwohngebäude
Ausstellungsdatum 12.04.2022

Objektbeschreibung

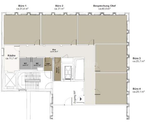
Das 7-geschossige Bürogebäude „Stadttor Neu-Isenburg“ teilt sich in drei Gebäudeteile mit vier Eingängen auf. Über den repräsentativen Haupteingangsbereich gelangt der Mieter zu zwei Erschließungskernen, die Zugang zu den Büroflächen in den Obergeschossen gewährleisten. Pro Etage lassen sich über die Gebäudeteile bis zu vier Mieteinheiten realisieren, die jeweils in flexible Einzel-, Kombi und Großraumbüros teilbar sind. Direkt vor der Liegenschaft befindet sich die Anbindung an eine Buslinie, welche in wenigen Minuten den S-Bahnhof Neu-Isenburg erreicht. Von hier aus gelangt man bequem und schnell zu den wichtigsten Zielen des Rhein-Main-Gebietes.

Lage

Markante und absolut zentrale Citylage, gegenüber dem IZ (Isenburg-Zentrum).